


Semirreboque plataforma baixa de 4 eixos e 80 toneladas
O semirreboque plataforma baixa de quatro eixos da CS TRUCKS foi projetado especificamente para o transporte de cargas pesadas. Possui uma viga principal em aço Q345B de alta resistência e configuração de quatro eixos Fuwa, com capacidade de carga nominal de até 80.000 kg e altura de carga de apenas 1.200 mm. Equipado com suspensão reforçada por feixes de molas, sistema de freios pneumáticos de circuito duplo e iluminação em conformidade com as normas europeias, garante o transporte seguro e eficiente de diversas máquinas de engenharia e equipamentos de grande porte. Construído para oferecer capacidade de carga superior e adaptabilidade a condições de trabalho complexas.
Capacidade de trabalho :
80 tonsSistema de acionamento :
4 axlesEixo dianteiro ( Kg ) :
13 tonEixo traseiro ( Kg ) :
13 tonO semirreboque plataforma baixa de quatro eixos da CS TRUCKS é comumente usado para transportar máquinas pesadas de engenharia e veículos especiais, como escavadeiras, tratores de esteira, carregadeiras, pavimentadoras, guindastes, máquinas de mineração e equipamentos florestais. Graças à sua plataforma de carga baixa e à impressionante capacidade de carga nominal de 80.000 kg, ele é ideal para uma ampla gama de cenários de transporte desafiadores. A viga principal é fabricada em aço Q345B de alta resistência e otimizada por meio de anos de experiência e análise mecânica, garantindo desempenho confiável sob altas cargas concentradas, forte resistência a impactos e estabilidade torsional.
Nosso Reboque plataforma baixa de 4 eixos e 80 toneladas Incorpora um pescoço de ganso destacável e um design de centro rebaixado, equipado com quatro eixos Fuwa de 13 toneladas e um sistema de suspensão com 10 molas de lâmina reforçadas. Essa combinação oferece maior capacidade de carga e um centro de gravidade mais baixo. A suspensão otimizada melhora significativamente a estabilidade de condução, enquanto a estrutura modular permite operações rápidas de carga e descarga. Acomoda diversos tipos de carga, melhorando a eficiência geral do transporte. Componentes padronizados garantem compatibilidade e facilidade de manutenção, e soluções altamente personalizadas estão disponíveis para atender às necessidades específicas do cliente.

Nossa fábrica é fabricante profissional na área de caminhões.
Garantimos que todos os produtos são novos e de alta qualidade.
»Ⅰ.Definição e Introdução do Produto:
Fabricante:CS TRUCKS GROUP LIMITADA
Vantagens do reboque plataforma baixa da CS TRUCKS
1. Tecnologia de soldagem consolidada:
A viga principal é soldada utilizando tecnologia automatizada de soldagem a arco submerso, enquanto as vigas longitudinais são soldadas por máquinas automáticas de soldagem a arco submerso com rastreamento. Todos os componentes passam por jateamento abrasivo para melhorar a aderência da tinta. O processo de montagem segue uma abordagem de "pintura antes da montagem", resultando em uma viga principal mais resistente e durável.
2. Materiais de alta qualidade:
O convés é construído com aço de alta resistência, proporcionando maior capacidade de carga e uma vida útil prolongada.
3. Projeto e fabricação profissionais:
Os projetos são baseados nos requisitos do cliente e nas condições operacionais específicas, com recomendações de especialistas para otimizar o desempenho para a aplicação pretendida.
4. Serviços de personalização:
Projetos e produção personalizados estão disponíveis para atender às diferentes necessidades dos clientes e às condições das estradas, garantindo que o veículo esteja bem adaptado aos ambientes operacionais locais.
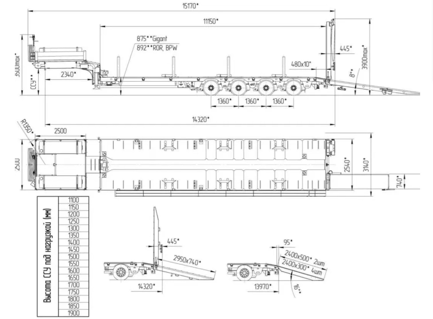
» Ⅱ. Parâmetros do produto para reboque plataforma baixa de 4 eixos e 80 toneladas:
| Dimensões gerais | 16500*3000*1800mm |
| Carga útil (kg) | 80000 kg |
| Peso em ordem de marcha (kg) | 12300 kg |
| GVW (kg) | 72300 kg |
| Viga principal | Viga em L robusta e de alta durabilidade, fabricada em aço de alta resistência Q345B e soldada por processo automático de soldagem por arco submerso. |
| Viga de estrutura | A altura da viga externa é de 450 mm, a largura é de 210 mm, a placa superior tem 18 mm de largura e 210 mm de espessura, a placa inferior tem 20 mm e a placa central tem 10 mm. |
| Eixo | 4 eixos, 13 toneladas, pastilhas de freio Fuwa de 16 toneladas. |
| Trem de pouso | Fuwa com capacidade de elevação de 28 toneladas e duas velocidades. |
| Pino mestre | Pino mestre aparafusado de 2,00 polegadas Marca JOST |
| Suspensão | Suspensão mecânica tipo reforçada |
| Mola de folha | 90 mm (largura) * 13 mm (espessura) * 10 camadas |
| Sistema de freio pneumático | Sistema de freio pneumático de linha dupla, câmara de ar T30, tanques de ar de 40L, válvula de relé de emergência. |
| Aro | 9,0-20*12 peças |
| Pneu | 825R20*16 peças |
| Acessórios | Uma caixa de ferramentas padrão |
| suporte para pneu sobressalente | um |
| Sistema elétrico | Sistema elétrico de 24 volts, conector elétrico de 7 pinos. Luzes de freio de estacionamento, placa de ré e indicadores de direção, lanternas traseiras em conformidade com a norma europeia, refletores dianteiros e laterais traseiros. |
| Pintura | Jateamento completo do chassi para remoção da ferrugem, 1 demão de primer anticorrosivo, 2 demãos de tinta final. |
»Ⅲ.Características do produto

★ Altura reduzida da plataforma e comprimento estendido da plataforma para aumentar a capacidade de carga;
★ Design leve com materiais de aço de alta resistência/aço de ultra-alta resistência para todo o veículo, proporcionando maior capacidade de carga e peso próprio reduzido;
★ Design padronizado e modular dos componentes; os acessórios podem ser selecionados de acordo com as necessidades do cliente, facilitando a instalação e a manutenção;
★ Estrutura de pescoço de ganso larga, com largura máxima de até 2096 mm.
»Ⅳ.Estrutura do produto

»Ⅴ.Desenho do produto

1. Podemos fazer os desenhos de acordo com conforme sua necessidade.
2. Podemos oferecer-lhe oAlta qualidade e preço acessível.
3. Podemos oferecer-lheum serviço pós-venda confiável
4. Nós temosequipe de design profissional qualificada
5.Entrega rápida. Qualquer pedido é bem-vindo.
Nós, da CS TRUCKS, também fornecemos peças de reposição (originais, OEM e de substituição) para todos os tipos de caminhões e reboques especiais HOWO, com desconto e alta qualidade, para garantir que os caminhões e reboques de nossos clientes estejam em boas condições de funcionamento.

As carretas plataforma da CS TRUCKS estão prontas para entrega.

As carretas prancha baixa da CS TRUCKS estão prontas para envio direto da fábrica.
Deixe um recado
Escaneie para o WeChat/WhatsApp :